Cini Little Australia services

SERVICES WE PROVIDE FOR THE FOOD AND BEVERAGE INDUSTRY


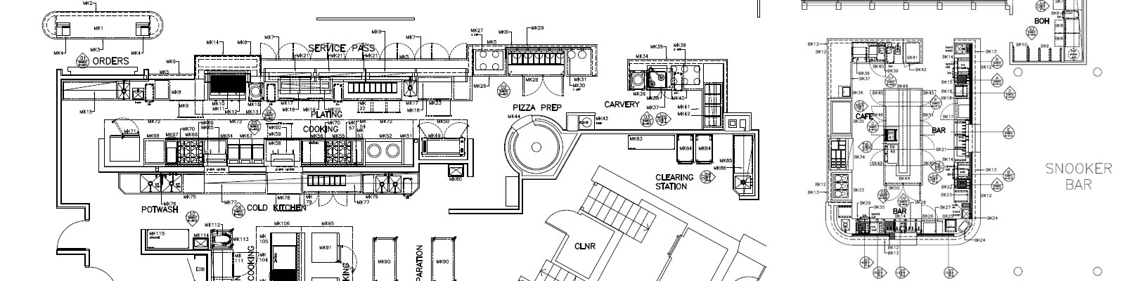
Our work covers a range of services for the commercial foodservice industry including advice to clients to help them achieve specific requirements, designing of facilities for best food practice and service production and the development of strategies.  Cini Little provides foodservice design layouts, electrical and hydraulic service layout drawings, special conditions and can provide penetration drawings with detailed information for complete documentation.

Cini Little Australia will also provide food and beverage equipment specification's which outline in detail the equipment requirements for the project.

Our expertise complements every step of a project from basic concept to validation through continued operations assistance including:

  • Feasibility studies to achieve the desired outcome
  • Detailed design development of food and beverage areas
  • Schematic planning of foodservice operation
  • Detailed design documentation including layouts, elevations and sections
  • Detailed services information covering mechanical, electrical, hydraulic, special conditions and penetrations
  • Our design office provides both CAD and Revit services to facilitate all project requirements
  • Monitoring of waste handling and procedures

WHY CHOOSE A FOODSERVICE CONSULTANT

professional foodservice consultant will address with the client the foodservice requirements to meet their financial and operational expectations.  Assessing the food quality, occupational health and safety standards are up to date with the new codes.  Advice to improve existing foodservice potential which may require expanding the current operation or introducing greater innovation to increase production and maximise financial return.

  • More broadly based advice
  • No bias; We work to achieve your desirable outcome
  • Independent; We are not involved in maximising equipment or stainless steel sales.
  • Experienced with over 40 years of foodservice consulting
  • An understanding of the implications of every aspect of your business
  • Operates to ethical standards
  • Design of the entire package to meet the codes and regulations

Cini Little works to ensure your operation provides the best foodservice possible, based on your operation parameters, the market and within the available resources and budget constraints. Cini Little will take a systematic and planned approach to all projects, working closely with clients, informing the clients key personnel of relevant information at every key stage of the project.

FoodService design specialists

To discuss your commercial food and beverage project and design a plan to succeed call our foodservice consultant team on (+612) 9418 8324 or use our contact us page.

WE OFFER A FULL RANGE OF FOOD SERVICE CONSULTANCY LISTED BELOW

Advice and drafting for new commercial kitchen design's, refurbishment of kitchens, serveries, bars and all other catering areas. Our objective is to offer cost effective solutions, sustainable, innovative and workable, always adhering to the brief and the key client requirements.

Design begins with concept development to ensure that the proposed catering facility meets the needs of the target market, makes the most effective use of the allocated space and supports a complying operation.

Financial performance analyses the entire financial aspects of the catering process, including budget planning and adherence; contract variations and re-negotiations, pricing structure, spending (average based), income comprising of sales volume and previous years evaluation towards performance and trends; sales costs; purchasing arrangements; supplier discounts and gross profit.

Operations can be benchmarked using our own financial data or other reputable sources.

Performance tracking and analysis would be carried out using computer based models.

Our operational reviews involve a thorough investigation into all areas of current catering practice, including food offer, food quality and menu analysis, food production methods, presentation and display, product range and operational standards in areas such as hygiene and staff service.

Food service organisations will be able to assess whether they are returning a best result from their existing catering services, and any changes would be based on improve quality and cost effective solutions.

Feasibility studies include the development of financial models, using the latest information, in order to identify the implications of each plan, including benefits and risks, operational and staff requirements, quality and sustainability.

Option appraisals aim to recognize and analyse all suitable options for the clients catering services. A report will observe the advantages and disadvantages of each option, including the financial and operational implications to best suit for foodservice operation.

Cini Little Australia supports clients with a range of suggested kitchen equipment suppliers, from advice on key aspects of the tender process, through to project management of the whole tendering and evaluation process, if required.

We offer advice on the preparation of pre-tender documentation and evaluation criteria.

We can assist with consultation between clients and shortlisted contractors, before submitting our final report with recommendations to the client's management team.

Support is offered during the process period and provides on-going monitoring of the service, to ensure that quality and standards are maintained.

Quality monitoring of catering services is carried out in the form of regular or one-off visits to the foodservice operation. Operational quality, service and health, safety and hygiene are all assessed.

Cini•Little use a formal system of quality control on every visit and any defects are raised with the contractor.

Areas for analysis will include staff working practices, cleaning schedules, standards of hygiene, HACCP, Assured Safe Catering and due diligence, temperature controls and operational systems. We also monitor the condition of catering equipment, highlighting any maintenance needs.

All reporting will be reported and if necessary as detailed report.

Cini Little Australia supports it's clients with the development of a catering policy, as well as contractual arrangements, pricing structures and quality standards. We will also offer management advice on establishing a corporate strategy for the catering operation.

We can prepare a catering strategy, to include short, medium and long-term aims and objectives for the operation. This will provide a foundation for operating a quality catering service, helping clients focus on how to keep their catering service on track, helping deliver the best possible catering operation for their organisation.

Cini Little Australia can offer business plan development advice. This advice assesses the strengths and weaknesses with a clear path to improvement within the existing food service operation. Business plans include marketing, as well as also inspect all other areas of the food service in detail, identify goals, purpose and plan to increase awareness for progress and the appropriate suggestions.

Cini Little Australia will assist with the development of marketing plans, to support existing and new foodservice operations to direct focus on current and potential markets. We can advise on main aspects of the process, or undertake the production of a catering marketing plan on behalf of the client.

Clients & Projects

ICC Sydney
Merivale
Citibank
ANZ Stadium
Brisbane Convention Centre
Commonwealth Bank
Hilton Hotels & Resorts
Four Seasons Hotels
Google
Ernst & Young
Hyatt
IBM
Deutsche Bank
Aldi
David Jones
Babcock & Brown
Aevum Living
Allens Arthur Robinson
Anglican Retirement Villages
IMAX
Lindt
Microsoft
Myer
Sydney Airport
Tafe NSW
The Star
Taronga Zoo
Transfield
UBS
Wolgan Valley Resort
Westpac
Sydney Cricket & Sports Ground
St. Vincents
IRT